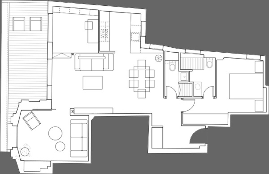
Hemos reformado éste verano un ático en la calle Martínez Campos de Madrid. Éste era la planta de la vivienda antes de la reforma. La vivienda contaba con un buen vestíbulo de entrada, una pequeña cocina alejada del salón un único baño y dos habitaciones descompensadas en cuanto a superficie una de ellas demasiado grande y la otra demasiado pequeña.

La reforma sitúa la habitación principal alejada del salón, integra en el centro salón y cocina, habilita un segundo baño y crea una estancia versátil que pueda utilizarse como estar o convertirse en una segunda habitación.
Si quieres dar un paseo virtual por la casa antes y después de la reforma.
Pulsa aquí


