
JHSF, una de las inmobiliarias más grandes de Brasil, acaba de anunciar la próxima construcción del edificio Vitra en la ciudad de São Paulo; un edificio residencial de alto estándar diseñado por Daniel Libeskind. Este será el primer proyecto en Sudamérica del arquitecto estadounidense, a cargo además del master plan de la Zona Cero en Nueva York.

Vitra es una torre de cristal con una forma bastante escultural. Según el arquitecto “representa el dinamismo de un lugar único y de una población enérgica llena de optimismo y potencial, en un gesto abierto al amplio panorama de São Paulo y el barrio Itaim”.

Según Libeskind, la inspiración para su diseño vino de la belleza natural y urbana de Brasil y de su gente: “con este espíritu diseñé una torre residencial que busca expresar ese optimismo, la cultura vibrante y las posibilidades dinámicas de un mundo realmente pluralista”.

Diagrama Inicial
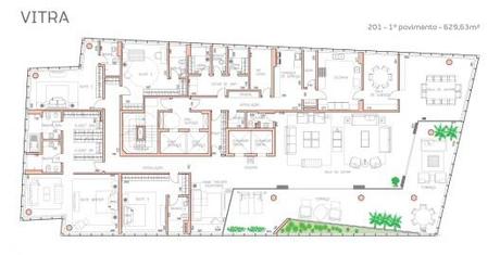
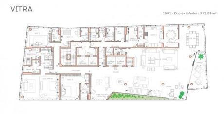
El edificio incorpora 14 departamentos – uno por piso más un dúplex en sus últimos niveles – de 565 a 1.145 m2. Cada planta del edificio es diferente, generando también variaciones en la fachada y en su forma total.
Planta Nivel 2
Vitra se ubicará en la avenida Horácio Lafer, en el distrito Itaim Bibi, entre las calles Salvador Cardoso y López Neto cerca de la avenida Brigadeiro Faria Lima – una de las principales carreteras de la ciudad-, ofreciendo un acceso fácil y rápido a lugares de esparcimiento como el Ibirapuera y el parque Do Povo.

Planta Dúplex 2
¿Qué opinan de este proyecto?Renders y Planimetría: Edificio Vitra
Compartelo donde quieras:
Compartir |
